Cad Drafting

Services
Home Services Cad Drafting

Brigen Consulting

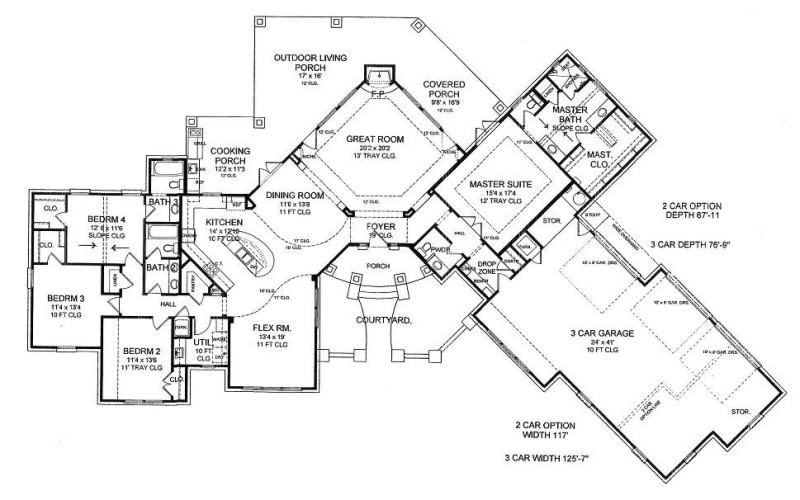
Outsourcing Foundation & Floor Plans Services

Outsourcing Foundation & Floor Plans Services

Unlock precision in construction with Brigen Consulting's advanced civil engineering outsourcing services. From foundation to floor plans, ensure your project stands on solid ground. Dive into a realm where expertise meets efficiency, laying the cornerstone for your civil engineering projects.
View more  
Outsourcing Sections Services

Outsourcing Sections Services

Discover the significance of Section Services in CAD drafting with Brigen Consulting, Vietnam's premier firm in outsourcing civil engineering. Dive into the world of intricate structural views, roadway insights, and more, ensuring precision in every project.
View more  
Outsourcing Shop Drawings Service: A Game Changer in Civil Engineering

Outsourcing Shop Drawings Service: A Game Changer in Civil Engineering

Get high-precision and accurate Shop Drawings from the experienced professionals at Brigen Consulting. Our skilled and trained team is well-equipped to provide the best quality shop drawings services that meets all your project needs. Contact us today for more information!
View more  
Outsourcing 3D Rendering Services for Civil Engineering Projects

Outsourcing 3D Rendering Services for Civil Engineering Projects

Discover the power of 3D rendering in civil engineering projects. Brigen Consulting offers top-notch outsourcing services, specializing in 3D rendering and CAD drafting. Enhance your project visualization today!
View more  
Outsourcing Structural Engineering Services

Outsourcing Structural Engineering Services

Brigen Consulting pioneers outsourcing structural engineering services, offering a spectrum of solutions from high-rise designs to ship deck drafting. With a blend of expertise, cutting-edge tools, and a commitment to excellence, we ensure your projects not only stand firm but also stand out.
View more  
Outsourcing Structural Steel Detailing Services

Outsourcing Structural Steel Detailing Services

Brigen Consulting, based in Vietnam, is at the forefront of civil engineering outsourcing. Explore our top-notch Structural Engineering, Steel Detailing, and 2D/3D drafting services. Experience unparalleled expertise designed to meet global standards.
View more  
Outsourcing Structural Shop Drawings Services

Outsourcing Structural Shop Drawings Services

Brigen Consulting offers premier Outsourcing Structural Shop Drawings Services in Vietnam, tailored to enhance project profitability. With precision and efficiency, our expert team provides detailed, high-quality shop drawings for diverse fabrication needs.
View more  
Outsourcing Fabrication Drawings Services

Outsourcing Fabrication Drawings Services

Experience precision with Brigen Consulting's Outsourcing Fabrication Drawing Services for Civil Engineering. Our Vietnam-based team delivers unparalleled detailing for optimal fabrication, enhancing construction accuracy and efficiency. Discover our industry-leading solutions.
View more  
Outsourcing Mechanical Engineering Services

Outsourcing Mechanical Engineering Services

Unveil the advantages of mechanical engineering outsourcing with Brigen Consulting. Understand the unparalleled benefits, essential traits of elite engineers, and our distinct methodology. Elevate project outcomes, achieve cost-efficiency, and gain deeper insights.
View more  
Outsourcing Mechanical 3D Modelling Services with Brigen Consulting

Outsourcing Mechanical 3D Modelling Services with Brigen Consulting

Brigen Consulting, based in Vietnam, is your one-stop destination for top-tier 3D Mechanical Drafting and Modeling Services. Specialized in civil engineering outsourcing, we transform 2D designs into precise 3D models, offering comprehensive CAD solutions across various sectors.
View more  
Outsourcing 2D CAD Drawings Service with Brigen Consulting

Outsourcing 2D CAD Drawings Service with Brigen Consulting

Brigen Consulting offers premier outsourcing mechanical 2D drawing services, bringing precision to technical mechanical components using advanced CAD software. Our expertise in civil engineering ensures unparalleled precision and quality in 2D mechanical drawings for diverse industries.
View more  
Outsourcing Mechanical Detailing Services

Outsourcing Mechanical Detailing Services

Brigen Consulting, based in Vietnam, is your trusted partner in Outsourcing Mechanical Detailing Services. Our adept team ensures precision in 2D CAD drawings tailored to client specifications, guaranteeing on-time delivery and uncompromised quality for your engineering ventures.
View more  

Try Brigen Consulting and enjoy our advantages:

  • Civil Engineering partner that understands your needs.
  • Highly skilled Civil engineers in Vietnam.
  • Trial period, no sign up fees.
  • Our flexible engagement models are helpful to save your cost.

ACCOMPANY YOUR PROJECT

ACCOMPANY YOUR PROJECT

Contact us

Fill in your message and we will contact you

The supported file formats include dwg, dxf, png, jpg, jpeg, zip, rar, doc, docx, pdf, pptx, and file size <= 25MB.